JUSBE(佳比)助力江西某縣委黨校“智慧校園”建設
http://www.www.2776g.com2022年05月16日 10:31教育裝備網
1
項目背景
近年來,《中共中央關于加強黨的政治建設的意見》報告中指出:“積極運用互聯網、大數據等新興技術,創新黨組織活動內容方式,推進黨校‘智慧校園’建設,為黨校辦學活動提供有力支持。近日,江西某縣委新建黨校項目采用JUSBE(佳比)打造的聲光視訊一體化解決方案。
2
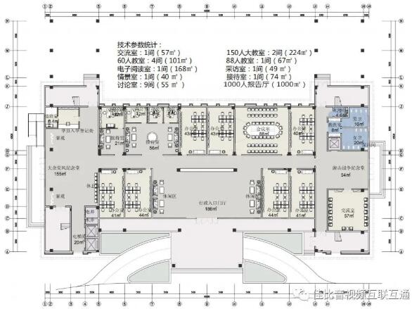
項目介紹
該黨校劃分為報告廳、會議室、接待室、教學樓、宿舍樓、餐廳、停車場等多個區域,為提高黨的干部培訓效率和辦公效率,讓黨校的管理更規范,JUSBE(佳比)根據黨校實際建設需求,設計實施了包含黨校背景廣播方案、專業燈光音響系統、無紙化遠程會議系統、5G會討系統、中控矩陣系統、云會務系統等多個場景的智慧校園音視頻解決方案。
3
項目展示
1、1000㎡多功能報告廳
該報告廳可容納1000人,JUSBE(佳比)整合了5G會討發言系統、燈光擴聲系統、中控矩陣系統、電子桌牌等系統,采用科學的搭配,將操作簡化,做到系統的自動化、智能化、數字化。
2、無紙化遠程視頻會議室
按照該會議室布局,為其配置了專業擴聲系統、語音識別系統以及14個點位的無紙化雙顯升降一體終端(含會討話筒),以嵌入式方式安裝在會議桌面,令會議室整體整潔、美觀。系統平臺采用的是JUSBE(佳比)自主研發并擁有著作權的軟件系統,集合了豐富強大的會議服務功能,只需觸控屏幕即可快速幫助參會者輕松掌握會議信息,高效完成會議內容。
3、黨校背景廣播
針對校園多個公共區域,JUSBE(佳比)設計了一套校園IP網絡廣播系統,實現了網絡化的遠距離傳輸,智能化的管理手段,以及數字化的管理方式。各類前端設備滿足黨校公共區域播放、教室點對點控制、周界求助報警等業務廣播覆蓋需求。
4、討論室、大教室、采訪區
黨校還設有四間討論室、兩間大教室、一個采訪區,總共配置了200余個電子桌牌、6套擴聲系統、5套會討系統等設備,滿足了現代化的數字會議系統會議程序簡單化、功能多樣化,能夠對會議實施控制、管理,包括聲音傳送穩定純正,討論清晰有序,使整個會議形式具有高效性。
4
結語
此次JUSBE(佳比)為江西某縣委黨校打造的聲光視訊一體化解決方案,提供了技術設計、設備供應、系統調試、運維培訓等服務,豐富的實施經驗和大量的落地案例確保了全套系統穩定流暢的運行,目前已順利驗收并得到領導一致認可。
更多信息請查看企業專區:http://www.www.2776g.com/cp26725
責任編輯:黃程程
本文鏈接:TOP↑











首頁












